Nuno Teotónio Pereira

Nuno Teotónio Pereira é um dos grandes mestres da arquitetura portuguesa moderna. Tendo sempre lutado por questões de ordem social, tem uma carreira de seis décadas ligada à arquitetura e também ao urbanismo.


A arquitetura tem a capacidade de qualificar a vida dos homens, mas para que tal aconteça tem que ser autêntica em termos construtivos, verdadeiramente funcional e sem falsidade.

Nuno Teotónio Pereira in Jornal LER, 1993


Nuno Teotónio Pereira: biografia

Nuno Teotónio Pereira, nasce em Lisboa em 1922. Licencia-se em arquitetura, em 1949, pela Escola Superior de Belas Artes de Lisboa.

É um homem de grande sentido de justiça social, lutando por um Portugal subjugado pela ditadura. Manifesta, assim, uma grande preocupação com as questões sociais, que aplica na arquitetura. A sua assumida ideologia política contra o regime salazarista, leva-o a ser preso. Quando se dá o 25 de abril afirma que acredita que o povo se possa agora afirmar e tomar conta do seu destino. Com a sua postura e obra pretende ajudar a “construir uma sociedade cada vez mais justa e cada vez melhor”.

Arquitetura

Nuno Teotónio Pereira possui uma vasta obra física principalmente em Lisboa, mas também noutros pontos do país, construída ao longo de 60 anos de trabalho. Pelo seu atelier na rua da Alegria, em Lisboa, passa várias gerações de arquitetos. Trabalha com Nuno Portas, Bartolomeu Costa Cabral, Manuel Tainha e Gonçalo Byrne, entre outros.

Habitação Social

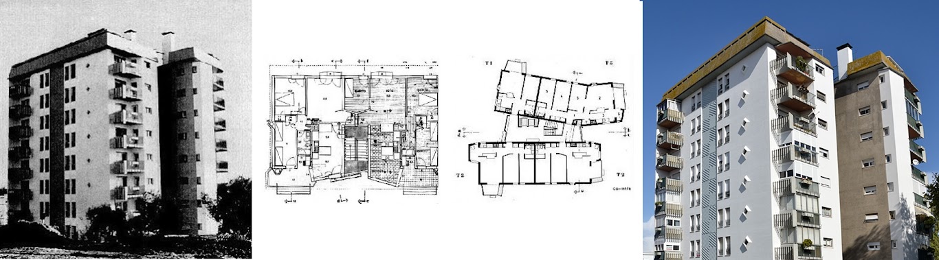
As suas preocupações sociais e a defesa de que todos devem ter direito a uma habitação levam-no a trabalhar vinte anos na área da habitação social. Destaca-se a autoria do projeto de Olivais Norte, em Lisboa, de 1959. Em 2010, quando é homenageado pela Ordem dos Arquitetos, afirma que o conceito de habitação social "continua a fazer sentido enquanto houver pessoas ou famílias sem casa digna".



Influência do Movimento Moderno

Participa no movimento que, a partir do 1º Congresso Nacional de Arquitetura de 1948, defende os princípios do movimento moderno e da Carta de Atenas. Torna-se, assim, num dos protagonistas da renovação da arquitetura portuguesa da segunda metade do século XX.
O desenho do Bloco das Águas Livres, em Lisboa, da década de 50, denota, deste modo, a influência dos conceitos corbusianos. Foi desenhado para ser um edifício emblemático, um símbolo ao ideal de vida moderna. Numa atitude considerada de vanguarda, integra nas zonas comuns intervenções de artistas plásticos, como Almada Negreiros e Frederico George.



Nuno Teotónio Pereira é também um dos grandes impulsionadores do Movimento da Renovação da Arte Religiosa (MRAR). Assim, introduz na arquitetura religiosa uma nova estética, estreada na Igreja Matriz de Águas, no concelho de Penamacor, em 1953. A Igreja do Sagrado Coração de Jesus, em Lisboa, da adécada de 60, reflete, igualmente, o carácter experimental e inovador da sua arquitetura. Nela utiliza o betão à vista e procura criar um edifício que se integre na envolvente.  [O betão na arquitetura]



Mas, uma das suas obras mais polémicas e simultaneamente uma das mais emblemáticas é o Franjinhas, em Lisboa, de 1967. Ficou assim conhecido pelo jogo de placas de betão (franjas) que protegem os vãos envidraçados e permitem uma sábia distribuição da luz no interior.



Para além de obras de raiz, intervém igualmente em edifícios históricos. É exemplo o plano de valorização do Convento de Mafra.


Legado

Com o desaparecimento, em 2015, do arquiteto Nuno Teotónio Pereira perde-se o “último dos modernos”. Resta-nos aprender com a sua postura enquanto homem de grande sentido social e rigor profissional. Uma pessoa que apesar de ser um dos grandes mestres sabia ouvir as novas gerações.

A arquitetura é feita de pessoas e para as pessoas.

Nuno Teotónio Pereira



Prémios

1968 | Prémio Valmor com o projeto de Olivais Norte
1971 | Prémio Valmor com o projeto do Franjinhas
1975 | Prémio Valmor com o projeto da Igreja do Sagrado Coração de Jesus em Lisboa
2015 | Prémio Universidade de Lisboa
Grau de doutor honoris causa pela Universidade do Porto
Grau de doutor honoris causa pela pela Universidade Técnica de Lisboa

O Prémio de Reabilitação Urbana - IHRU assume a designação de Prémio Nuno Teotónio Pereira, como homenagem ao arquiteto.


+INFO
Lista completa de obras - LNEC


2018 NOVEMBRO, 09 (atualização)
2015 OUTUBRO, 19


0 Comentarios